


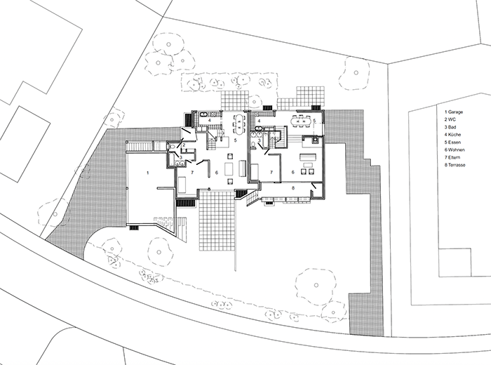
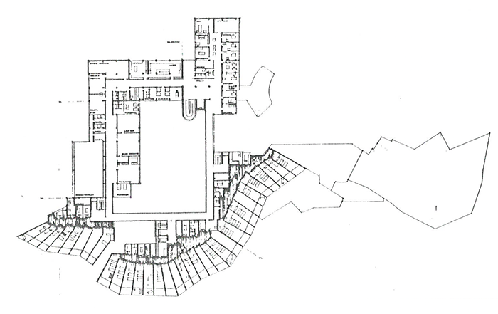
Vor 6 Jahren bin ich auf Elmar Kunz‘ Architektur aufmerksam geworden. In einer japanischen Zeitschrift „the kentiku, october 1964“ publizierte Max Lechner Elmar Kunz’s Diplomarbeit und schrieb: (…) Es sind Ansätze vorhanden zu einer Art komplementärer Architektur, zu jenen Formen, in denen organisch Zufälliges mit kristallin und technisch Hartem verbindet. Ein Versuch die Spannung zwischen „klassisch“ und „barocker“ Haltung einzufangen, Technik und Natur zum Ausdruck zu bringen? (…) 1965/66 arbeitete Elmar Kunz bei Alvar Aalto. Was charakterisiert die „komplementäre Architektur“ von Elmar Kunz? Anhand 11 Wohnformen, von kleinen Dachumbauten bis hin zum Altersheim, einem umfassenden Foto-Essay über ein grosses Arzthaus, Interviews mit Elmar Kunz, Mitarbeitern u.a., Bauplänen, Baustellen- /Modellfotos nähert man sich Elmar Kunz‘ Arbeitsweise, Haltung & Ausdruck.